Tijdens mijn opdracht bij Dura Vermeer heb ik het voorbereidingsteam ondersteund bij de verkoop van eengezinswoningen en bij de engineering van het appartementencomplex.
Mijn ervaring met BIM (Building Information Modeling) is met deze opdracht een feit. Bij deze opdracht was het mijn taak om binnen 6 weken een BIM model te realiseren dat bruikbaar is voor productie. In dit proces gaf ik regie aan de BIM-modelleur die het 3-D CAD-Model tekende. Het resultaat is een optimaal model dat bruikbaar is voor de keten die volgt in de uitvoeringsfase. Handig? Jazeker! Maar ik ben wel blij dat ik de bouwkundige kennis aan boord heb en zelf jaren lang ervaring heb opgedaan als Vectorworks-tekenaar en het controleren van productietekeningen. Waarom? Omdat het de bedoeling is dat het model uit bruikbare onderdelen bestaat, net zoals deze onderdelen (lees producten en diensten van onderaannemers) op de bouw worden geleverd, en in delen wordt gemonteerd.
Waar vroeger de aannemer de onderaannemers moest overtuigen dat de 2-D werktekeningen ook echt kloppen, overtuigt de aannemer de onderaannemers nu met het 3-D model.
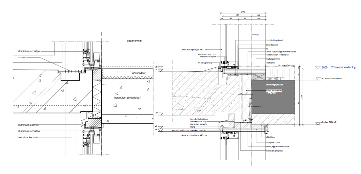
In het model is geen ruimte voor details. De details zijn traditionele doorsneden die uit het model op schaal worden ‘geannoteerd’. Feit blijft dus dat je van meet af aan de ‘1:5’ details moet uitwerken om de output te weten voor je BIM-model! Hiervoor heb ik traditioneel gebruik gemaakt van de schetsrol en veel 1-2-tjes gedaan met de modelleur en het interne projectteam van Dura Vermeer totdat het juiste detail ontstaat dat hout snijdt voor het model.
detail van het balkon, links: het detail is bruikbaar als DO en voor een bouwaanvraag maar is nog niet afgestemd op de bouw en de garanties vanuit alle stakeholders. rechts: de grote elementen zoals balkon, vloer en stelkozijn/HSB komen direct uit het 3-D BIM-model. De overige onderdelen en maatvoeringen zijn 2-D geannoteerd.
De combinatie van kennis en ervaring, en het tijdig betrekken van je interne en externe projectteam vergt hierdoor een projectmatige aanpak. Zeker als je maar 6 weken de tijd hebt om een DO (Definitief Ontwerp) op te werken naar Uitvoeringstekeningen! In deze opdracht heb ik op tijd, en naar mening van alle stakeholders, een model opgeleverd dat direct bruikbaar is voor de productiefase. het eindresultaat is dat de faalkosten hierdoor aanzienlijk worden gereduceerd doordat er draagvlak vanuit de werkvoorbereiders, uitvoering en producenten is en er voldoende tijd is voor de productie. Tijdens deze 6 weken wordt alle ruwbouw, gevelbouw en installaties risicoloos ingekocht. Het BIM model en de BIM regie wordt hierdoor direct terugverdiend en is daarom een bedachtzame investering voor de aannemer.
Wilt u weten wat ik voor u als BIM-regisseur kan betekenen? Lees dan meer over BIM of neem vrijblijvend contact op.




